Sandy Pond Road in Lincoln Massachusetts, is a street known for its contemporary art museum and its’ architecture. Walter Gropius and Marcel Breuer built houses along this winding road and it was here that we were commissioned, many years ago, to add our name to that roster. What good fortune to have a client that wished to be involved in every aspect of the preservation and extension of the little gardener’s cottage they had purchased at auction. The pictures above this text show what a true collaboration of like minds can create. Together we purchased old doors, floor boards, windows, hardware and lighting fixtures to create a seamless composition. The small terrace and lattice enclosed gardens were truly a labor of love overseen by the owner who planted the garden and watched it grow. This “Little House” was an early example of what Judge Skelton Smith has built a practice upon … Thank you Jane and Bill for entrusting this little jewel of a house to our care.
Turned Chair


Beacon Hill
Judge Skelton Smith was conceived in a tiny two room Garrett on Louisburg Square in 1982……three old friends combined youth, ambition and a remarkable desire to bring “traditional “ design back to Boston. It has been the best adventure we ever set out upon!
Indeed, Our most enduring projects, those of memory and merit, have been accomplished on Beacon Hill. We include a melange of photographs and sketches to show our progress in the long journey to accomplish our primary goal…….Tradition and contextual design.

At this moment it is proper to give credit to my dear long departed friend Mrs. E Sohier Welch who’s encouragement and top floor rooms gave rise to our four decade quest. Thank you “Fiora” you are never far from our thoughts.

Ames Library Competition
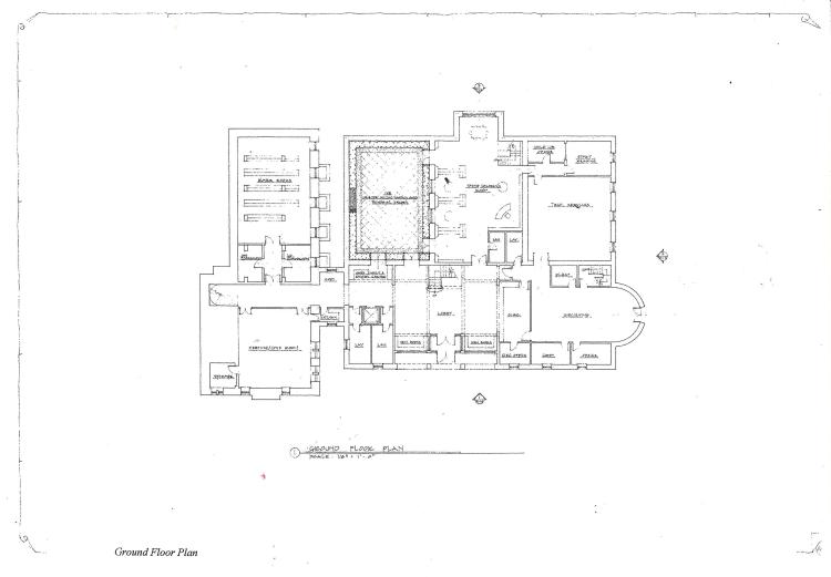
Architects are called upon from time to time to submit “entries “ in competitions. The competition for the Ames Library in North Easton , Massachusetts was especially meaningful to Mr Judge for it was a historic structure in his home town. The building was designed by Henry Hobson Richardson and was very familiar and significant to all the residents. Indeed, Mr Judge’s great grandmother would have witnessed its construction.
Judge Skelton Smith architects adopted the style of later additions to the building by Richardsons successor firm Shepley Routan and Coolidge. In addition the property surrounding the new building was also reimagined as may be seen in the site plan that was submitted and reprinted here. Landscape Architect Frederick law Olmstead was channeled in the suggested “carriage drive” plan and an old Ames mansion complete with sunken Italian Gardens was also integrated into the final submission. The resulting composition represents some our finest preservation and design work to date.
Chilmark Modern
At times the only appropriate design solution to a complex problem is to “keep it simple”! We have always found that Modern architecture is well suited to the task of tying discordant houses together. The project mentioned here is a prime example of how this theory of simplicity can deliver unity from a house composed of mainly additions and alterations.
Set on a lush green lawn with mature plantings and distant views of the Ocean Judge Skelton Smith was called upon to unify a shingled house with a proper entry hall , an all weather carport and a studio and shop. Not an easy chore to perform.
The architects chose to compliment the existing structure with an economical flat roofed addition complete with an Asian inspired Atrium. The new front entrance hall will be sheathed in floor to ceiling glass and the new front door will be enhanced by a Thom Malley sculpture depicting Joy. The inspiration for this approach was from the work of Earl Flansburgh……..one of the masters of mid century country houses here in New England.
As in our traditional work “all the old rules apply”. Stone paving, wood siding and in this case a small Coy Pool greet guests at the newly positioned front entrance. A series of three shallow terraced steps covered in Ivy and moss lead to the door. The inner courtyard , Asian inspired, will continue the theme of simplicity. In all , three spaces will benefit from this “looking inward” garden. The Hall, Kitchen and newly reconfigured old entrance space ( home office) will soon claim this calming view.
Sometimes the best design solutions are the hardest to market…….wish us well Earl!
Parkside
We have been fortunate to have many clients use us for multiple projects. The duplex apartment pictured here is one such project. Parkside was completed for a professional couple that only a few years earlier had hired JSS to restore an abandoned town house on Beacon Street. The Back Bay house was open to the elements and being lived in by squatters and stray cats. Once the elegant residence of a prominent Boston family we were called upon to make it shine once again…….and we did.
One can only imagine our reaction when the call came in that they were contemplating moving to a new high rise on Boston Common!
The Penthouse floor was under construction and we were given a free hand in determining its final appearance. What resulted is a space that was opened from a concrete box to a dramatic two story light filled “Movie Set” interior. The pictures included here show the transformation better than a thousand words…….it remains a gathering place on New Years Eve and stands the test of time.
The “Oval Garden”





The “Oval Garden“ was designed to compliment the house we built in the Copeland Historic District of Martha’s Vineyard. The plant materials were selected in keeping with the neighboring Waban Park properties and in accordance with the Historic commission’s guidelines. The results are timeless:
Lavender and roses, day lilies, black eyed Susan’s ,ferns ,ivy and spring bulbs accented by an array of trees and shrubbery commonly associated with coastal New England villages. The entire composition is hedged with privet and punctuated by Dogwood and Rose of Sharon …….a distinctly early 20th century vocabulary reimagined with grace and restraint .
The photographs shown here were taken almost immediately after the yard was planted. In the years that have followed the garden has reached maturity and the vision has become reality.
We include , amongst others, a picture of Jim Skelton and Joy Thorely at the front door as if to say “Welcome Home”. It is appropriate to note that Judge Skelton Smith was responsible for every aspect of this house . The Architecture , gardens and interiors were all designed by us and the results ,to our eyes ,are therefore sympathetic and beautiful at any season of the year.
Idyllic!
Oak Bluffs Cottage






Set on a small village lot bounded by Waban Park with distant Ocean views a writers aerie was designed and built. Martha’s Vineyard long the home for artists , journalists and theater people was to have yet another National figure join its ranks. We were privileged to receive the commission.
The house ,built on four levels ,was conceived and executed in the early 20th century style . Steep gambrel roofs ,Multiple stone fireplaces , weathered shingles and lattice windows are but a few of the buildings nods to the local vernacular.
The owners employed us to design the gardens as well as outfit the interiors……the results were seamless and in keeping with the Credos that Judge Skelton Smith has expressed over four decades of professional practice. Needless to say “Jack Ryan “ would have been happy here…….and indeed he was.
The Farm




The “Farm” as it is referred to in The Madanonock region of New Hampshire is being complimented with a new guest cottage. Over the years Judge Skelton Smith architects has been called upon to be a part of the changes that a property of this size and history sometimes require. The main task for us, as it is with every project, is to be sure that whatever is added is both timeless and seamless. Houses and the grounds that surround them are not frozen in time ……..and this one has had its share of fascinating changes since it was built in the 1840’s.
While not a working farm in the true sense it still provides “High Mowing” hay for its own stables and those of neighbors. The land crisscrossed by owner designed sensitively planned walking trails and opened distant mountain vistas is remarkable. We have been fortunate to advise on additions , interiors and landscapes over the course of time. The “Grey Cottage” ,as it will be called upon completion , is another building done by us added to the composition.
Please pause a few moments and see what a series of new “farm sheds “ with glass walls and outstanding views will be like. A contemporary take on a rustic simple form using only vernacular materials set on a windswept hillside that is reminiscent of a passage from Ethan Frome.
The Art Buchwald House








A few years ago we helped a potential client locate a large old house on Martha’s Vineyard. The place we found was brimming with charm and local history. It was also in need of a complete renovation.
Perched above Vineyard Haven Harbor on Main Street and designed in the shingle style it was perfect! Just what was requested and came with a rather proper Vineyard lineage. The house formerly owned by Art Buchwald and his wife had been the summertime gathering place for the literary and theater folk of the day. William and Rose Styron, Garson Kanin and Ruth Gordon, Dan Rather, and James Cagney were but a few of the names that crossed its now rather sorry threshold. Against this backdrop we were tasked with bringing the place back to life . Not an easy task!
Jim Skelton a well known and respected architectural preservationist handled the delicate dance of determining how to restore this “grand dame” to her proper place of prominence……while all the while respecting the original structure ….the results are truly remarkable.
The 1890’s were brought back to life supplanted by the addition of an airy interior complimented by beautifully reimagined gardens. its glamorous ghosts are by all accounts intact and happy .





























