Skip to content
Judge Skelton Smith Architecture
Menu
+
×
expanded
collapsed
Home Page
Featured Articles
Contact
Blog
Portfolio
Interior Design
Gardens
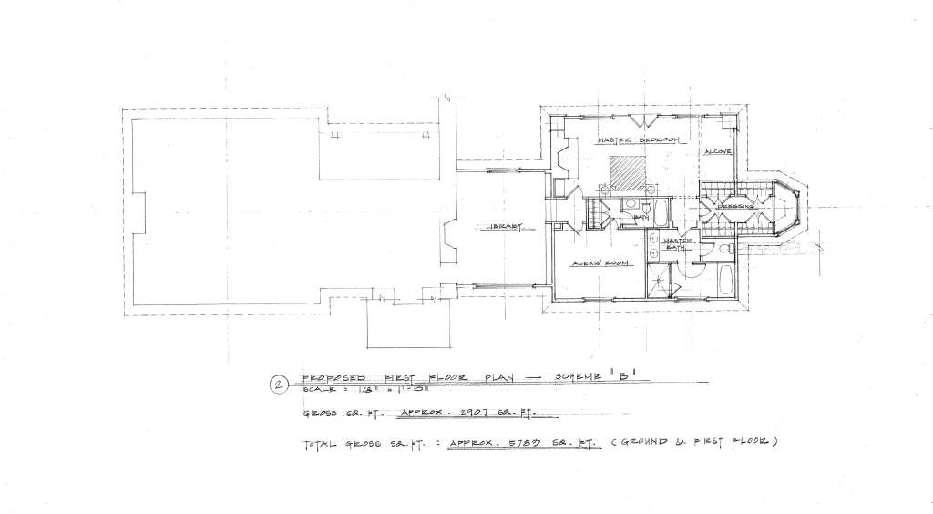
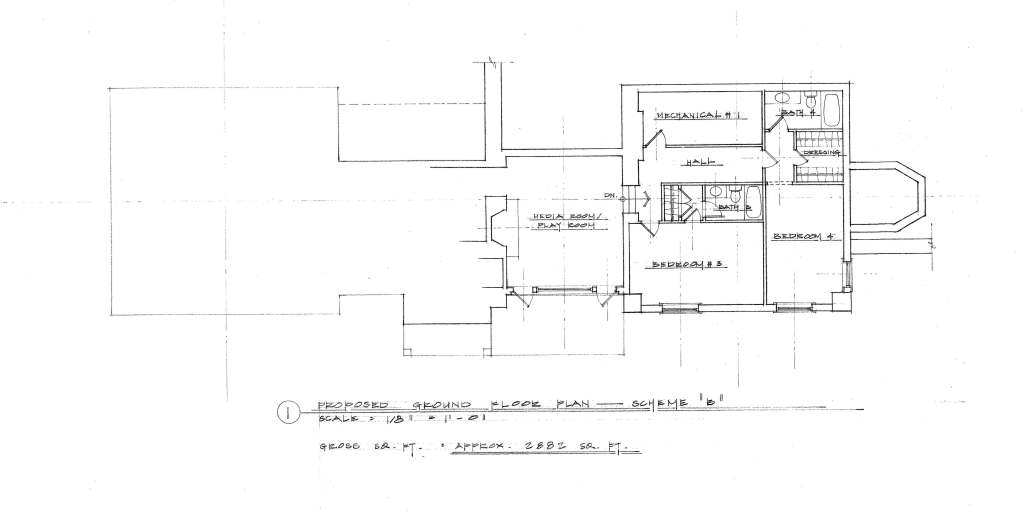
Home Proposal at Greenbrier
Judge Skelton Smith Architects
Home Proposal at Greenbrier
Subscribe
Subscribed
Judge Skelton Smith Architecture
Sign me up
Already have a WordPress.com account?
Log in now.
Judge Skelton Smith Architecture
Subscribe
Subscribed
Sign up
Log in
Copy shortlink
Report this content
View post in Reader
Manage subscriptions
Collapse this bar