Skip to content
Judge Skelton Smith Architecture
Menu
+
×
expanded
collapsed
Home Page
Featured Articles
Contact
Blog
Portfolio
Interior Design
Gardens
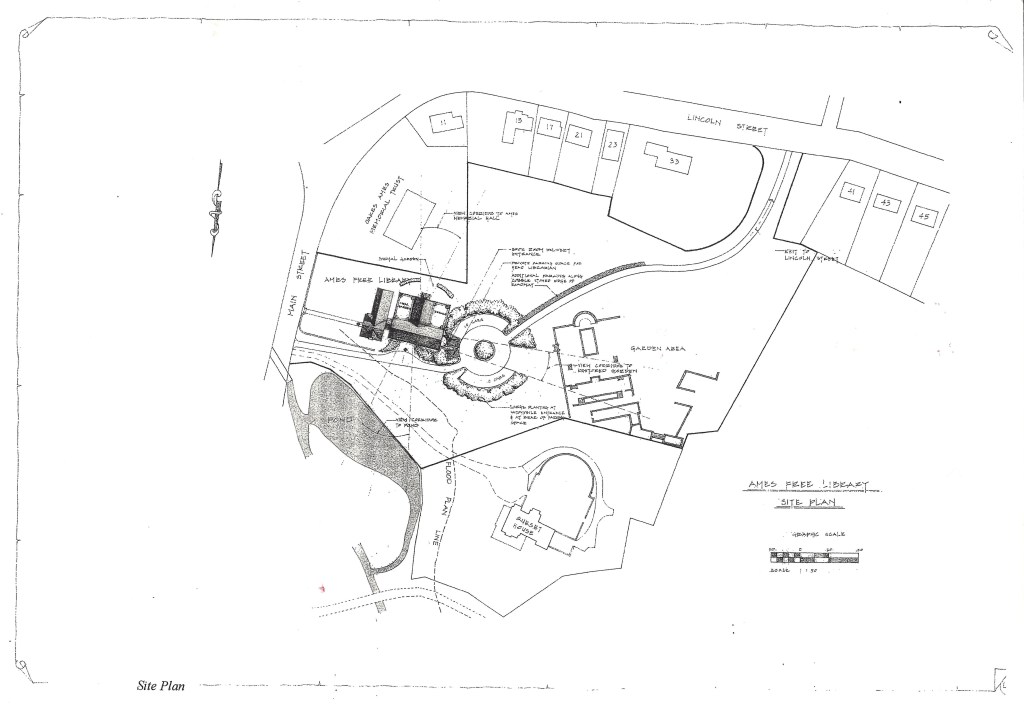
Ames Free Library
Judge Skelton Smith Architects
Subscribe
Subscribed
Judge Skelton Smith Architecture
Sign me up
Already have a WordPress.com account?
Log in now.
Judge Skelton Smith Architecture
Subscribe
Subscribed
Sign up
Log in
Copy shortlink
Report this content
View post in Reader
Manage subscriptions
Collapse this bar